水库论坛欧神文集官网 - 欧成效yevon_ou

搜索

欧神小密圈 | 20190123全 | 我宁愿用卡融米

 关闭 [复制链接]
发表于 2019-1-24 13:45:05 | 显示全部楼层 |阅读模式

水库论坛|欧神文集|欧神小密圈|欧成效|房产投资官网

水库论坛|欧神文集|欧神小密圈|欧成效|房产投资官网

本站网址:www.oushenwenji.net
水库论坛微信群统一入口:Shuidi021, 备注“水库论坛

注意:
1)水库论坛|欧神小密圈, 付费版(见上图),可直接向欧神提问,更近距离接触。如果直接转账,可以打9折。公众号回复 “打折” 了解详情。
2)水库论坛|欧神小密圈, 圈内回复“文章”,获取未发出文章。(原因你懂的!)

2019/01/23 23:39
提 问:我在沈阳买的房子,直接找了中行的按揭贷款经理,两套房子都在中行办的贷款,都是三成首付,(其中一套按二套利率上浮),和她交流了,我是纯投资,一些不合规的她也给抹平了,今天我突然想到,既然一个中行网点能三成首付贷两套,那我找不同区的两个网点能同时贷四套吗,和她交流后她说有困难,后来又说按揭件一般都交到省行审批,省行同时接到一个人的四个按揭贷款基本没戏了。问题1.并发四套有可能吗?跨省呢?问题2.我在中行同时做两个三成首付再并发一个其他行的三成首付,这样成功率就大多了吧,相当于普通并发?谢谢欧大
答:2018.04时是可能的,我们也做过三并,四并。现在管得严。信贷员基本不接。

2019/01/23 23:38
提 问:应该是4.8%吧?如果是4.8%,一年用6.5次,算高息吗?可以用来cf 不?谢谢大??

水库论坛|欧神文集|欧神小密圈|欧成效|房产投资官网

水库论坛|欧神文集|欧神小密圈|欧成效|房产投资官网
答:每次费率0.48%年化0.48%*6.5=3.12%

2019/01/23 23:37
提 问:欧大,被骗钱财金额小要习惯损失吗?被诱骗了心情很差!!!恶狠狠的诅咒回去是小人之心吧?习惯损失才是真的洒脱嘛?
答:你钱多才能洒脱。不要自欺欺人佛系洒脱,那是鸡汤。

2019/01/23 23:37
提 问:还有一个小问题麻烦您,我刚才付费88元向您提问,可是问题修改了三遍才最后确定,前两遍的问题删除了,那前两遍的88元回头会自动退回来吗,谢谢您,辛苦了
答:会的,三天。

2019/01/23 23:36
提 问:欧大,五里店融景城旁边那些公务员集资房,划拨地的,贷款要降一成而且能贷的银行不多。这种房子价格大概应该是融景城的几折?划拨地房子涉及到哪些附加费用?还有什么隐患需要注意?

水库论坛|欧神文集|欧神小密圈|欧成效|房产投资官网

水库论坛|欧神文集|欧神小密圈|欧成效|房产投资官网
答:一般品质要差更多,更不提交易和税费中的困难。感觉要七折,具体案例具体分析。

欧神文集全套16本,共分3个系列:
1)“楼市黄金十年”系列4本
2)“楼市投资体系”系列8本
3)“思想体系(杂文篇)”系列4本。
其中“楼市黄金十年”系列:包含多篇外面未流传的经典老文。知道欧神小名吗?你知道欧神其它笔名吗?你知道欧神的情史吗?答案都在这里。

详情请扫二维码:

水库论坛|欧神文集|欧神小密圈|欧成效|房产投资官网

水库论坛|欧神文集|欧神小密圈|欧成效|房产投资官网

2019/01/23 23:35
提 问:欧大,目前说服父母抵押一套房子做JYD,可以拿到80万,只能做先息后本,利率约7.4。4月,母亲满了65就贷不了了。因为借款时间很短只有5年,所以,还没想清楚这80万能做什么。后续再买房只能全款。请问,欧大,您觉得我是否需要在4月前把这笔钱抵出来呢?
答:如果这是你的第一单,你会背负父母很高的期望和压力。我宁愿用卡融。当然,你愿意承受压力,也可以融。

2019/01/23 23:34
提 问:1.相邻两个小区步梯六楼中的三楼相对比电梯33楼中的次顶折价多少?2.就是说步梯中的最好楼层相对电梯中的最好楼层折价多少?3.这个和电梯总高多少楼层有关系吗?比如总高7层、12层、18层、33层的电梯房哪个和步梯房3层的价值想近?是电梯房楼层越高越比步梯3楼溢价多吗?欧大辛苦!
答:恐怕要15%15~20%电梯房一般比楼梯房豪华得多。品质有溢价。电梯7F也很贵。因为又接近“洋房”品质了。(加微shuidi021,入水库交流群)

2019/01/23 23:33
提 问:欧大辛苦,我找的贷票已经帮我办了贷款面签,不想让他来回跑折腾,想把过户抵押手续做委托给买房的中介,(中介不是特别靠谱,但是是个精明人),这是通过朋友在链家找的委托书,贷票已经办了面签,想把委托书一到六条删了,其余的条款还有什么风险吗?您要是没时间看这么多内容,请放出求各位库友帮忙指导一下,非常感谢!

水库论坛|欧神文集|欧神小密圈|欧成效|房产投资官网

水库论坛|欧神文集|欧神小密圈|欧成效|房产投资官网
答:可以的。标准20项委托合同。一般只能大授权给直系亲属,中介都不一定能行。

2019/01/23 23:31
提 问:欧大,房东满五不唯一,中介说可以配合做唯一,配合做唯一一般是怎么做?靠谱么?
答:意思就是交易中心从来不查。你直接勾唯一即可。

2019/01/23 23:30
提 问:欧大,我记得您曾经对上海楼市有个比喻,中年。具体是怎么阐述的?沉疴
答:上海楼市的真实价值是4/3/2,已经进入吃毒药涨内力阶段。


2019/01/23 23:28
提 问:欧大,有个以前同事过五年的朋友介绍了一个100万工程项目。项目还没签合同,就开口问我借5万,我怎么回复?
答:项目完成才有钱。
稳定P机,及信用卡换现金的问题,可以咨询水库信用卡高手shuidi021。稳定不跳码。二维码如下:

2019/01/23 23:27
提 问:欧大,看到库友讨论和您的回答,A8.1才算中产,我感觉距离我好远呀,等我到达时,不知道门槛又上升了多少。下图是我大概情况。估计五年能到A8.1(也可能我太乐观了)。问题:1.这个速度是正常吗,快了还是慢了?2.是不是房价上涨解锁新资源后升阶能比这还快?3.我怎样才能更快一点儿?赚钱后再打滚借钱?4.能想到的就是做凤冰增加周转了?还有别的吗?5.新手非常认可水库,但是底子薄也着急赚钱,愿意付出代价,您对于我这样的有什么建议吗?6.我目前阶段应该做些什么?(新手等一轮赚钱效应+读文集中)

水库论坛|欧神文集|欧神小密圈|欧成效|房产投资官网

水库论坛|欧神文集|欧神小密圈|欧成效|房产投资官网

答:慢了。不是。苏家屯400m,算成本才280w。你仓位这么小,才是赚钱慢的主要原因。等你成为老手后(新手勿用!),狂风暴雨般地建仓2000w左右。筹款(新手勿用)没建议。看房200套,基本功扎好。看房200套,确保你做事比任何人都更尽心努力。

2019/01/23 23:23
提 问:欧大,这个贷款可以算做净资产问题我也没有明白。1.您说的那个算法利率是多少?按揭贷款5%左右吗?2.应该是年限越长越值钱吧?为什么您说三十年期五折,十年期七五折呀?这样贷100万三十年五折相当于50万净资产?贷100万10年期相当于七五折75万净资产?怎么感觉应该是相反的呢?3.这是根据通货膨胀水平算的吗?谢谢您

水库论坛|欧神文集|欧神小密圈|欧成效|房产投资官网

水库论坛|欧神文集|欧神小密圈|欧成效|房产投资官网
答:别问了,脸都被你丢光了……网友答吧。

2019/01/23 23:23
提 问:欧大,7年前的刷卡记录,还可以查得到,打印出来吗?14年已经销卡。交通银行信用卡。可以的话,去哪里查询+申请打印呢?用什么理由去打印呢?拜托您了
答:不行。保留六个月。

2019/01/23 23:22
提 问:请问欧神,抵押贷有两种,1.先息后本利率7.3%,5年期,一年一还;2.等额本息10年期,利率7.8%。请问哪个更好一点,多谢!
答:每年过桥太可怕,不要。

2019/01/23 23:22
提 问:欧神,请问注册公司为了贷款的话,是注册科技类的公司好呢,还是培训类的公司好?如果注册培训类的公司考虑到是自己以后想从事的行业,以前也做过。但是毕竟目前都没有实际经营的话,哪种贷款更容易方便呢?多谢!!!
答:培训比较象实体公司。但需要你有经营。

2019/01/23 23:22
提 问:请问bj商办性质的商住,jyd能做评估值几成?
答:北京新规,商住禁止抵押。

2019/01/23 23:21
提 问:欧大,为啥说jackma没死就不错了啊?做错什么事了吗?
答:手套,自然帮老板laundry了不少钱。

2019/01/23 23:21
提 问:欧大好,最近跑了几家银行,帝都,发现服务窗口普遍变少,大堂经理说:利润低,工资下降,好多员工辞职。我觉得是银行主动减人以应对低利润。这种现象的原因是什么
答:符合历史趋势,自动化银行势不可挡。

2019/01/23 23:20
提 问:欧神好,请问大蕊,孕期吃燕窝是智商税吗?听说吃了宝宝皮肤好。建议孕期多吃什么东西呢?
答:燕窝的主要功效,是妈妈心情好。倒不求什么营养。
很多库友对流水问题,总是理解的不透彻。而这种干货一旦免费,就会前脚刚知道,后脚就会洞塌。2000字左右,纯干货,经常性更新以符合最新要求。需要的库友请扫二维码:

2019/01/23 23:20
提 问:欧大,做贷款,直接搜出来这样的担保公司。他们愿不愿意做我的单子呢?靠谱嘛

水库论坛|欧神文集|欧神小密圈|欧成效|房产投资官网

水库论坛|欧神文集|欧神小密圈|欧成效|房产投资官网
答:尽量不要接触,鱼龙混杂。完全可能吞了你

2019/01/23 23:19
提 问:房产交易是“买涨不买跌”吗?房价在上升期时是买房的人更多吗?横盘时买房的人反而变少?
答:是的。但是限购影响更大。

2019/01/23 23:19
提 问:殴大看好2019-2020这两年的cq行情吗?这两年能持续上涨吗?
答:看好。可以

2019/01/23 23:19
提 问:欧大 请问大蕊除了健身、食补什么可以增强抵抗力?
答: 大蕊:主要就是健身锻炼,饮食,睡眠,Vc有一定增加抵抗力作用。

2019/01/23 23:19
提 问:欧大,年底想私对私做30的年终奖ls,现在一笔转30是不是会有问题,如果一个月分成3到4笔转都备注年终奖可以吗?现在年终奖ls要怎么做更合适?感谢!
答:一笔转30没有问题。

2019/01/23 23:18
提 问:欧神,记得你说过是信道教的,请问对《太上感应篇》怎么看啊,谢谢。
答:名著啊

2019/01/23 23:18
提 问:欧,空头父母要卖掉三线房产,什么话术和他们借钱?
答:新房子写他们名字。

2019/01/23 23:18
提 问:欧大,为什么一定会多印呢?不能不多印吗?
答:给你家里装一个印C机,你印不印
欧神电子文集(公众号创立-2018年5月13日),会经常性更新。详情请扫码:

2019/01/23 23:17
提 问:欧大我220万现金,打了三套。还剩90万现金。买了一年。您觉得我还买么。剩下的钱90万。有大半是父母给的继续沈阳还是重庆,再来一套
答:等一轮赚钱效应。

2019/01/23 23:16
提 问:ogg,在北京,商铺出租承租方不支付租金违约,但拒绝腾房,除了去法院诉还有什么好办法么?谢谢。
答:断水断电商铺更容易,找闲杂人等上门。

2019/01/23 23:16
提 问:Os,什么叫因公共利益需要?Kfs交钱拍地,地铁盖上盖项目,目前退地已在流程中,经自然资源与规划局确认,退地原因是公共利益需要。完全看不懂这是什么操作?请欧神分析。
答:譬如这里要拉条铁路。

2019/01/23 23:15
提 问:od,sh,二套按揭。是不是银行利率都一样
答:不一样。可以差0.5%

2019/01/23 23:15
提 问:欧爷,你说做jyd,假如我跟行长很熟,有什么好处,能贷到更多吗?还是说规定总七就那样的?我很想知道行长的权利大不大,值不值得深交
答:合规查得松一点。能过不能过的地方,让你过。

2019/01/23 23:14
提 问:欧大,自从你教我们多核后,我几乎大部分时间都在找核办卡,都是找亲戚,也有限,让我越发不想浪费时间,结交朋友,说一些无聊的话,因为觉得办卡买房最实在,我这样,格局是不是很狭隘?
答:尽快赚到第一笔钱,否则会怀疑人生的。赚到8.5之后,再思考哲学的事。

2019/01/23 23:13
提 问:欧大,晴小姐那篇你说不太对的文章。文中举了个例子,男a包女a,带去表店选表,女选十几w的,男说女贪,还说如果你选几w的,我就觉得你好,还送个100w的。这个男的是不是也是low?我好奇女a如果直接选100w的表,他会怎样
答:Low爆了,说明晴予没有接触过A9阶层。A9不会用100w的表去侮辱人。

2019/01/23 23:12
提 问:大,3月后渔村能启动吗?
答:有概率。

2019/01/23 23:11
提 问:殴大,这个什么意思?是不是可以忽略?

水库论坛|欧神文集|欧神小密圈|欧成效|房产投资官网

水库论坛|欧神文集|欧神小密圈|欧成效|房产投资官网
答:就是字面的意义。如果严格执行,一个人的总额度不是80w,而是只有10w

2019/01/23 23:11
提 问:xyk pay 1000 get cash 952, one year do 6.5 times, 算高息吗?谢
答:0.48%费率有点低,恐怕是小机。

2019/01/23 23:10
提 问:Ogg,您之前提到财富的认定是人心的选择,比如清代鼻烟壶值钱,现在没多少人记得了。但#F1260掀桌子的一代人里提到,财富不可建立在人心之上,资产不可建立在Ip之上。问为什么前后有矛盾?最后,我们认定房产就是财富,那这不也是人心的认定吗?

水库论坛|欧神文集|欧神小密圈|欧成效|房产投资官网

水库论坛|欧神文集|欧神小密圈|欧成效|房产投资官网
答:所以鼻烟壶不值钱了。

2019/01/23 23:09
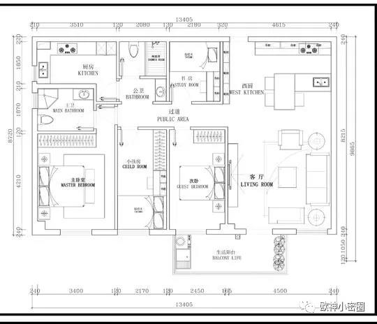
提 问:大大给点意见,下面的设计图行不行1、五口人,常住3~4口人2、原厨房离客厅太远,也喜欢开放式厨房,干脆两个厨房

水库论坛|欧神文集|欧神小密圈|欧成效|房产投资官网

水库论坛|欧神文集|欧神小密圈|欧成效|房产投资官网
答:在这么里面的角落。搞一个重油烟的设施,很需要勇气。一般双厨房都是放书房这个位置。

2019/01/23 23:07
提 问:欧大,请问深圳2019看好还是仍在观察?
答:看好,滴滴答答有涨幅。

2019/01/23 23:06
提 问:欧大,根据以往惯例,tax during WWiii可能会有哪些征收标准呢?
答:没法收。任何税收都来不及。一二个月内,火山爆发般地用钱。

2019/01/23 23:05
提 问:追问:请问欧神,具体如何做可以减少我的损失呢?大房子fh后在房产证上加上我的名字,是不是我和老公的份额就各自一半了?有贷款的情况下可以改变份额比例吗?其实加名字就怕以后以我的名义继续买房会遇到麻烦,但不加名字的话我太没有安全感。

水库论坛|欧神文集|欧神小密圈|欧成效|房产投资官网

水库论坛|欧神文集|欧神小密圈|欧成效|房产投资官网
答:夫妻默认是50:50%如果要更改份额,不仅要在交易中心说明,还要在婚姻合约中说明。很麻烦。不限购的城市,可以把你妈名字加进来。占50%

2019/01/23 23:03
提 问:西岗外国产权房子好卖吗 能卖到多少钱每平
答:目前市区大概2500~3500USD/m我觉得有泡沫。但也能卖完。

2019/01/23 23:03
提 问:奥派认可国家鼓励生育增强国力吗?
答:认可。鼓励而不强制即可。就如同鼓励劳动一样。

2019/01/23 19:02
提 问:欧大,你说一线三年一倍,二线五年一倍,这个是根据您的实战经验得出的吗?还是其他
答:三年一波,不是三年一倍。
目前消费贷已经成为鸡肋,企业经营贷成为主流。凡事要趁早,多军要早早筹备。注册新公司,名称有什么讲究?企业经营范围是什么?免费的提供,洞塌的速度会远超大家的想象。设置一个小门槛,小众受益。

2019/01/23 19:01
提 问:殴大好,爷爷是国企老干部,有一套分配的别墅,但是因为改建过,不能通过买卖过户到我名下。全权大委托加遗嘱公证能不能拿去办xyk?有这样先例吗?
答:不能。信用卡中心不接受

2019/01/23 19:01
提 问:论马尔萨斯陷阱 有发出来嘛?网上找不到?
答:没写过,空缺

2019/01/23 19:01
提问:神,有帮助落户深圳的资源吗?请分享,谢谢!
@shuidi021

2019/01/23 19:01
提 问:今天没发就被删的文章能发一下么?
答:改改明天再试试

2019/01/23 19:01
提 问:殴大,中华民族绵延至今的T-1是什么呢?
答:运气

2019/01/23 19:01
提 问:帮异性亲友办卡。过一段时间,可以将电话号码改为自己的吗?未必信用卡中心来电的时候不CARE?
答:信用卡中心任何电话操作,都分男女。而且鬼精。如果异性有人,挂你LP手机比较好。

2019/01/23 19:00
提 问:欧大,您好,请教:现正申请抵押贷款中,根据实际需要,按贷款中介的指引,办理了个体执照。预计三四月份需要为另一个核办理抵押,还可以用这次的营业执照吗?
答:咨询贷款中介。一般换一家银行就可以了。

2019/01/23 18:59
提 问:欧大,一般升一阶要买多少套啊?感觉好难,1000平一平涨1万才是1000万哦。
答:10000平米,一年涨1w,就是每年1e

2019/01/23 16:42
提 问:od,求教,买了精装修新房4年,现出租给别人做民宿,现在发现把全屋水闸关了水表仍然在转,检测后说可能某段水管漏水,这种情况该如何解决?貌似维修的话会很大笔费用?
答:让师傅逐段检查。一般漏水,会造成很大的水渍,除非在花坛里,否则不发觉是不可能的。也有可能是水表被做了手脚。

2019/01/23 16:40
提 问:全款买了二线,各种原因做dyd放款需要等到年中,可能去cq赶不上年初这波了,您觉得值得吗,买完了有点后悔没直接去cq按揭
答:没事,钱赚不完的。每年都有行情。

2019/01/23 16:39
提 问:如何测智商?从哪里测智商?
答:专业测智商机构,自己搜

2019/01/23 16:26
提 问:欧大大,一套核心区房子如果评估出来1380万,可以做850万抵押贷款,产品十年期,先息后本,利率周期按二十年算约6.15%左右,每月还4万左右,年底要还本军10%(第二年可以再借出来))这样的产品核算吗?另两个问题请教欧大1 现在一线差不多要6年翻番,预计核心区这样一套房子3年后什么价格,上涨部分是否可以包住这部分抵押?2这笔资金不再买房纯消费使用,周期内,大约用多少算极限了?谢谢欧大
答:一般。利率不贵,金额可以,还款太猛。三年看能不能包进一波。一波+30%850w消费?胆子大了点。建议仅消费掉增值部分。

2019/01/23 16:22
提 问:OD,能够让老人直接落户sy。买房后,一般情况下还能把户口迁回老家吗?老人问起这事,烦扰我神了。
答:除非京沪,其他都可以迁回。农转市麻烦点。

2019/01/23 16:22
提 问:欧大您说,现在到处都是教育视频,情商培养啊,如何培养孩子自信啊,怎么更有智慧啊?等等,您说按照他们的方法,只是说不打,孩子不听啊,您说他们的对吗?我们小时候,那那么多保护自尊心的话呀,父母脸色一变马上乖乖的,该干嘛干嘛去了……那老师该揍揍,该说说,班主任厉害的,说话最损的班级一般都是全年级学习最好的……
答:杀人就改s刑,打人就该坐牢。不在于你揍不揍,而在于你有没有理。需要给孩子建立明确的法制预期。

2019/01/23 16:21
提 问:欧大,有抵押贷款无房贷的房子在出售时,可以拿买家首付款钱把抵押款还了吗?还是不可以的?谢谢欧大
答:可以。除非资金监管强制。

2019/01/23 16:20
提 问:os,你家族同辈人中你智商最高么?你智商高属于变异还是遗传?
答:最高。变异

2019/01/23 16:20
提 问:灯塔,明年考虑在重庆买房,目前有一贷票,外地三无,如果考虑用假离婚方式做的话,1、到时候契税是按照j离婚做,首套减半吗?2、房票夫妻都无房无贷,如果以夫妻名义购买契税本来就可以减半,这样按j离婚做应该也不属于tsls吧?3、如果银行以j离婚做,一个人上产证,交契税的时候以实际夫妻婚姻申报是否可行,因为银行那边是按照j离婚操作的,这样两边的资料会有冲突,银行可能会查到这个情况然后不批贷款吗?水 库思 维公众号。
答:是的算可以,正好你昨天结婚了。

2019/01/23 16:19
提 问:大,有四张帝都sfsd老人票,是bj小单子做起来还是去CQ SY? 净资产没有A8
答:先做一张北京单,凑点钱买大点。

2019/01/23 16:19
提 问:欧大,你有几个手机号码?
答:三个

2019/01/23 16:18
提 问:欧大,A8.5到A9是个什么阶层?属于资产阶级吗?

水库论坛|欧神文集|欧神小密圈|欧成效|房产投资官网

水库论坛|欧神文集|欧神小密圈|欧成效|房产投资官网
答:8.5财富自由。8.5~A9没有本质区别。

2019/01/23 16:18
提 问:欧大,为啥炒股的都说房子会跌,而炒房的都对炒股的嗤之以鼻?
答:上等和下九流扯什么。
很多朋友不知道欧老师投资重庆的逻辑是什么?
一定要看一下《下一.重庆(下)》的完整版(隐匿版)。
扫描二维码可得:
注:另附赠文章《欧神发家奋斗史(娱乐版)》。

2019/01/23 16:18
提 问:欧大好,想看一下这个问题的答案,您方便吗

水库论坛|欧神文集|欧神小密圈|欧成效|房产投资官网

水库论坛|欧神文集|欧神小密圈|欧成效|房产投资官网
答:圈内搜,已经问过了。我觉得还行,网友觉得5+差不多。

2019/01/23 16:17
提 问:WH,2019年会横盘调整?什么时机入?2020年除夕前入?有什么迹象来看出市场回暖?深圳启动后,二线城市才会启动?谢谢
答:目前各管家公司反馈,普遍乐观。已出现跳价行为。

2019/01/23 16:16
提 问:欧大,手里200+现金,去深圳合适,还是去重庆合适?
答:颇为尴尬。深圳有首贷,选深圳

2019/01/23 16:15
提 问:匿名用户 提问: 借欧神宝地呼一下,买卖双方己该妥,求手拉手中介办理过户手续。费用详谈。请下面留微信号,我加微信详谈不好意思,坐标北京
答:-

2019/01/23 16:15
提 问:欧大,银行按揭需要提供首付凭证么?如果首付是部分现金怎么办?
答:房东写收据。或者你再汇房东一次,让房东转给你妈。

2019/01/23 16:14
提 问:欧神,日本东京的小房子有投资价值吗,最近有朋友去日本看房子,想去买一套,会不会买了十年不涨啊,还是小赌怡情可以试试手气
答:第一套有税务优惠。套数多了,赚钱几乎不可能。

2019/01/23 16:11
提 问:追问一下:他的担心在于,首付不够,需要信用贷补充一下,担心买完房子办不出来,所以想着先办理。另房子是他老婆个人名字,有结婚证,我估计先离婚,他办信用贷,买完房在结婚,这个路径他不愿意走。

水库论坛|欧神文集|欧神小密圈|欧成效|房产投资官网

水库论坛|欧神文集|欧神小密圈|欧成效|房产投资官网
答:凡事皆有风险。我们建议小风险,他选择大风险,随意。

2019/01/23 16:10
提 问:HB的定义是缴税?这是哪里来的新概念?
答:本币的定义,就是纳税。说明你从小到大,身边所有的人,老师父母朋友导师,全部都是弱鸡。
多军离婚,原因你懂的。但初次操作的朋友,还是要把握好技巧和细节的(含54大法)。全部2000字左右。详情请扫二维码:

2019/01/23 16:09
提 问:欧大,一个大咖说富人住的是100平1房,200平2房,太奢侈了吧。真的吗?这个大咖是不是有钱人。
答:200平米1房

2019/01/23 16:08
提 问:我突然觉得目前的绘本和大部分动画片都非常扯淡,基本上是毒教育。反倒那些大浪淘沙留下来的老人与蛇之类才是好的故事,您说对吗?
答:对的。2019年动画片,比1990年代,落后二个档次。

2019/01/23 16:08
提 问:大,破司机都放亲妈名下可以吧?
答:可以

2019/01/23 15:26
提 问:欧大,我在深的两套房都是婚后我父母大力资助后买的(一套大的资助全款七成,一套小的资助两成首付),都在我名下。由于换房,我和老公lh,以他的名义已三成购入一房,并正在卖一套大的旧房,打算卖掉后把我手头另一套小的全部还款变成我婚前财产后再fh,再把剩余的钱提前还新房的贷以减少月供。请问欧神,用什么办法可以弥补我的损失?fh后先把新房加上我的名,再提前还贷吗?还是加名时顺便要求四六开?还是做个什么别的公证?你觉得哪种我老公能接受?
答:不要还新房的房贷,减少月供。

2019/01/23 15:25
提 问:欧大,中产奋斗到多少算升阶成功?
答:永远没有成功。一山还有一山高。8.5是个槛。

2019/01/23 15:25
提 问:马路面对面,相同楼龄,户型OK,但外观和环境有差异,单价差异20%,买哪个?未来会拉平吗?涨幅将接近?
答:会拉平。主要是好的那个,会变得很脏。

2019/01/23 15:24
提 问:欧大现在入沈阳,是不是非笋盘不入呢谢谢大大
答:贷足即可。笋盘差一二成,无所谓的。

2019/01/23 15:24
提 问:欧大,以前我是一个宅男,朋友少,后来听欧大的,要多交际,交的朋友多了,遇见狗血的事狗血的人就多了,但是真心的朋友有价值的朋友也多了,人脉也广了,这是好事吧?那些狗血的人狗血的事也是拓展人脉的代价吧。
答:对的。你真正的成本是时间

2019/01/23 15:24
提 问:一款产品成分有误,老客户怀疑公司不诚信所有材质不符,怎么才能从根本上观念上消除影响呢?
答:请他来参观工厂。

2019/01/23 15:23
提 问:欧大沈阳 二环内的次新,五年次新,一万二,龙湖的盘,铁西区。可以入么
答:看品质。铁西品质差异很大。贫民窟杂处。

2019/01/23 15:22
提 问:Ogg,既然Zf觉得70年卖这个价格卖亏了,那为什么不把住宅的年限变短,卖40年50年,使用权限依然是住宅?反正喜欢新房子的依旧喜欢新房子,大家都皆大欢喜了。。。?
答:现在在流行卖40年,甚至20年的。

2019/01/23 15:21
提 问:欧大,我一同学,单位很好,坐标北京,准备办宁波银行白领通+白领融+万利金,办完之后打算买房,公积金+商贷,共按揭200~250的样子。白领通上征信,白领融不上,万利金不清楚,办理出来信用贷之后不用,等按揭放款后在用,这个样子,按揭会有问题么?
答:不如先申请按揭。再申请这些乱七八糟的。征信花了,终究不好。金额又不高。

2019/01/23 15:20
提 问:老人票打完,离开长沙。欧大,为何离开长沙?长沙宏观调控这么厉害,未来应该反弹得很厉害吧
答:建仓不易,商业环境恶劣,臭名昭著。短期内没前途。

2019/01/23 15:19
提 问:欧神,我想找香港亲戚借钱在内地买房,借的可能是港币,(1)借条是按照港币还是人民币写好呢?(2)如果写港币,假设借3-5年,您预计人民币是升值还是贬值?我承担的汇率风险大吗?(3)借港币利率给多少合适?非常感谢!
答:借港币,还港币。不大港币利率5%就够了。当然他们肯不肯借,是另外一个话题。
深圳是目前唯一一个户口大门还敞开的一线超大城市,门槛非常低。目前优惠期。深户、深圳贷款(抵押,按揭)、深圳笋盘。咨询二维码如下。

2019/01/23 15:19
提 问:欧大,您好,有个北京买房的问题想咨询下您,我的工作地点在肖家河位置中国农业大学西校区,我媳妇是在来广营位置默沙东研发有限公司。 我们都有首房首贷资格,想买一套自住,初步选择的地点在南沙滩片区。南沙滩区域在我们两个人上班地点的中间区域,我骑车上班半小时,我媳妇坐地铁40分钟。这个区域离鸟巢很近,商超公园都有,生活非常便利。有高端小区也有老破小,首付能拿出220-240万,总价能买500万65平左右的老破小两居室,麻烦欧大在选筹和价位上给点意见,非常感谢!

水库论坛|欧神文集|欧神小密圈|欧成效|房产投资官网

水库论坛|欧神文集|欧神小密圈|欧成效|房产投资官网
答:劈成离婚再买哦,新版征信要来了。

2019/01/23 14:26
提 问:欧神,自古套路得人心,我用表弟的核买房,然后办xyk,我担心他不愿意给我办xyk,我想先不说,先买了房,后面在顺水推舟,比起一开始就说太多,反而吓到他,到时房子都不敢给我放,反而不妥,你觉得呢?我想走走套路
答:刚开始提一句,“银行配套,需要开展五项业务,这样利率会低一点”

2019/01/23 14:25
提 问:协信科技城项目,纯投资,目前已经交2万诚意金,准备买138平米,套内116平米,建面单价1.18,套内1.4万,外地三无可以做到首付三成,首付总共54万,如果买先期需要交30万,剩下的24万可以一年分期,或者两年分期,但是两年分期需要付2万利息,这个项目是通过团购的形式,可以便宜几个点,比正常渠道便宜6.7万的样子,如果我买的话可以通过抵押贷筹50万,其他资金用信用贷解决,不想动用自己的资金,我初步算了下,如果按照房价每年涨百分之10,五年如果能卖掉,基本是不亏不赚,如果每年涨15%,能赚80万。麻烦请教下1,纯投资此房值得投资吗?
答:水库协信城讨论很多。一般认为不是主力推荐笋盘方向,笋度一般。

2019/01/23 14:24
提 问:同一个银行不同网点查询征信会实时看到吗?同样的银行不同的网点能打征信时间差吗?
答:查询征信,目前是实时记录。

2019/01/23 14:24
提 问:欧大大,朋友圈晒一套3000千万的豪宅,标个楼盘名,说自己都没空来打理,会不会让人浮想联翩,总比发虚头虚脑的会议什么产业合作好吧,谢欧大
答:没空打理的话,你至少要五六套这样的房子。否则怎么显怎么装,不如别IB.

2019/01/23 14:22
提 问:欧大,怎么样才能成为一个受欢迎的人?换句话说,怎么样才能成为一个别人想帮你的人,想借钱给你的人?你说宅男宅女无前途,要多与人交往,然后我开始变得慷慨,不计较,并多花时间与人交往,发觉情况改善了很多,同事也开始喜欢我,并跟我交往,我这样做对吗?
答:人情本是生意。生意就有选择,有笋盘。因此社交之前,先要选定你的阵营。不会广泛社交,很无效的。

2019/01/23 14:21
提 问:欧大好,请教一下:现在我们对柬埔寨以及非洲、拉美、j胖等的经援,和m时代的对国际gongc阵营的经援,本质是否一样?可以不用答,谢谢
答:效率高那么一点点吧。

2019/01/23 14:21
提 问:殴大,您估计未来二三年里比较好的二线城市,如南京,天津,济南这些放开限购,允许外地户籍买房的可能性大吗?谢谢!
答:参考2014的尺度,还是有希望的。赶上放水即可。

2019/01/23 14:20
提 问:欧大,30岁了体制内,很想趁年轻追个老三,这政策啥时候能放开啊?感觉老得好快…
答:现在就生好了,也不罚钱。

2019/01/23 14:20
提 问:欧大,重庆620亿棚改怎么看呀?按一套100平,一平1万5赔钱就是4万多套了。。。
答:一般认为把CQ楼市炒高30%,需要二千亿资金。

2019/01/23 14:19
提 问:欧大,现在是有一个泛泛之交的一个人,他是开公司的,他让我帮忙找到一个关键人物,这个关键人物可以决定是否买他的产品,并引荐,我可以引荐,但是我需要动用我的人脉,而我的人脉也要动用他的人脉,我不知道我是不是要向他索取一定的好处才帮他引荐,但是他不给我一定的好处,我干嘛给他引荐呢,我的时间那么宝贵,如果是我,有一个人帮我引荐,我最起码给对方送礼,但是那个人啥都不表示一下,我挺不愿意帮他引荐的。不知道欧大怎么看?我应该怎么做。
答:他没有表示,以后也不会感谢,就借口说联接失败好了。

2019/01/23 14:19
提 问:刚刚坐车,旁边一个美女,在微信聊天交流算卦心得,时不时还自己掐指一算,还说家里符挂天花板上怕不够高,一会去见师傅师兄,赶上年前最后一场法事是自己的福气巴拉巴拉,唉,感觉前一段时间仁波切被曝光后,这些"纯情良妇"转而去被"道家神棍"收割了,老大,你开个"道教科普"收费课吧,既能普及科学拯救良家妇女,还不用在这被低级问题气的血压高
答:这二天小号次条,在卖算命广告呀。8%返点。一场算下来,也能赚一二千的。

2019/01/23 14:18
提 问:大,如果申请zxd或xyd提供的是第三人帐户,以后银行会再查这个人的帐户进大额款项吗?会对第三人做贷后管理骂?
答:钱进去后,第一笔动向,查得很严。

上海贷款(抵押,按揭)和淘笋盘问题,及线下咨询。这里有好的渠道。可以扫码咨询:

2019/01/23 14:17
提 问:欧大,这篇文章观点用网络人口和金融资产总和来评判城市好坏,重庆属于网络人口少的地方,不在最终的推荐列表内?欧大怎么看这篇文章的结论?用最科学的数据看全国,这12个城市更胜一筹!
答:上海没有错失互联网》互联网又不是一切。

2019/01/23 14:17
提 问:神,能给大蕊看一下,溃疡性结肠炎有没有好的治疗方案和医院推荐,谢谢!
答: 大蕊:溃疡性结肠炎(UC)主要问题是会炎症复发,病变累及直肠,最好做内镜检查,排除可引起的其他疾病。一般药物治疗选择美沙拉秦,有些重症要灌肠。医院选择肛肠医院,如果北京,二龙路医院(北京肛肠医院),其他区域不太了解。

2019/01/23 14:16
提 问:贷款中介一开始说肯定能做下来,我自己也花了无数时间和心力,财力,最后贷款中介说做不了。库友遇到了此类情况,是认怂了。还是怎么搞啊。
答:遇人不淑,广为散播,提醒同行注意,标记恶劣口碑。抓紧时间换银行。

2019/01/23 14:16
提 问:欧神,你带名表吗?什么牌子的
答:从不戴表。

2019/01/23 14:15
提 问:欧大,有钱人一般喝什么水?看王思聪喝的那个是什么水?
答:有钱人不在乎喝什么水。第一梯队都可以。

2019/01/23 14:15
提 问:欧大,小孩5年级期末考试比去年有所进步;略发感慨,个人目前对小孩教育的观点是:学习必须要优秀,不管用何种方式都需要去优秀,现阶段现在这个教育环境下,考试结果导向,说“学习不是唯一的出路”都是自我安慰的说辞,弱鸡;补课实在是太多,自己感觉让小孩疲于奔命,全部只有填鸭了,我个人看法是适当合理因地制宜的补即可,关键让小孩自己“开启”,关键是学会学习、摸索出适合自己的有效方法才是王道,毕竟学习是一辈子的重要技能之一。以上对否,请批评指正谢谢。
答:补课只补要考试的即可

2019/01/23 14:13
提 问:二.确定是c销无疑。肯定也不是国家为h台的项目。招收的人员要求38-50几岁(其实年龄小也没问题),49000要取现,不允许转账(这不就是反侦察嘛),要人品好。较高层的领导在当地专门租住房子,提供生活材料,给从全国各地开的人洗脑。我准备明天就撤,这个洗脑要为期5-7天。另外感谢水库,让我构筑了正确的人生观,追求原理原则的态度。我主要想问的是:1.传销组织的崩盘一般是什么原因?2.如何说服我朋友。
答:下线不够了。他的人生绝望,缺乏出路。因此是说服不了的。除非别有生路。

2019/01/23 14:12
提 问:欧大,请问如何应聘西港常驻人员?主要工作内容是什么?
答:我需要经常发言的,人设丰满的,这样我才能知道你是怎样的人。不接受陌生人。

2019/01/23 14:03
提 问:“发国债。然后有一群神奇到SB的国民,把钱投到水里,认真购买0.1%回报率的30年国债。”欧神,意思是不是之所以日本不信钱,主要是因为平成一代买了国债,然后他们成为了老人啊?
答:中国人鬼精鬼精,估计没人买国债。

2019/01/23 14:02
提 问:神,之前为了买房在老家办JLH,后在SZ通过HP JJH买房,在老家MZJ办的时候,为了方便说无车无房无小孩,今天SZ计生局打电话来说老家计生局打电话问什么时候LH,之前小孩判给谁,还有提到在SZ JH不到一个月又L了。这个会有什么影响吗
答:结离婚频繁,不是罪。小孩抚养权清晰。都没有问题。

2019/01/23 14:01
提 问:欧神,坐标厦门。市中心地段,同一栋楼,高层住宅一平4W5,低楼层(5-6楼),商业性质一平1W4,200平+。不考虑其他因素,这种价差是否值得博商业性质的低楼层,类影居方式运作长持?
答:商业性质……没碰

2019/01/23 14:01
提 问:欧大,重庆流动性仓位也是一房两房么?还是小三房更好?
答:越便宜流动性越好,全国都一样。

2019/01/23 14:00
提 问:欧神您好,我现在给我用的一个XYK核,情况是这样:天津,32岁,女,未婚,名下一套房子,有房贷,私企,社保基数5500,公积金基数8400,现在在办卡,现在总共7行 45.4万额度,已经开通了工商5万的和华夏10万的,负债率不高,剩下的30.4万还没开通,现在准备陆续在两三个月的时间内办交通中信,浦发,北京这四个银行的卡,现在我联系了一个交通银行的办卡员,交通的办卡员他们说考核四大行总额度,四大行总额度超过20万的话他们的总额度就不会太高,只能批1万多的额度,我现在四大行总额度只有工行5万和建行7.5万,其中建行7.5万还没有开通,您觉得这个办卡员说的对么?那我还有必要办交通的卡么?谢谢欧神!
答:有道理的。那就先办交通。办法顺序太专业了

2019/01/23 13:59
提 问:刚才看文集,“一个产品刚上市的时候性价比最高,以后会慢慢更改配方”,这个也适用汽车行业吗?印象中新品上市,价格总是偏高,时间长了有了新品老一代产品总是降价销售,这其实是因为更换了配方?有的人为了省钱不买最新的产品,买消费者认可、市场上成熟的产品,其实性价比还没新品高是吗?

水库论坛|欧神文集|欧神小密圈|欧成效|房产投资官网

水库论坛|欧神文集|欧神小密圈|欧成效|房产投资官网
答:快销品和耐销品,是完全不同二个行业。

2019/01/23 13:58
提 问:欧大,主场长沙,还有一张二套的老人票,手里有现金200w,你建议在主场继续深耕,还是去重庆或是深圳?
答:老人票打完,离开长沙。
上海户口,价值百万。很多应届生(一般是985或211学校)可以落户上海。人生第一桶金是这么来的!详情请扫二维码:

2019/01/23 13:57
提 问:有300万粉丝的淘宝店,您觉得一年应该赚多少才对?
答:差别很大。淘宝获客成本已经高达200元/人。这样算,每个客户每年至少应该产生20元。假设300w中,有5%活跃粉。15w*20=300w净利润每年

2019/01/23 13:56
提 问:请问,个体营业执照抵押了一套房。现在自己还可以做两套房的按揭还是一套?
答:二套

2019/01/23 13:55
提 问:一.一个很要好的朋友,为避免他被传销洗脑,这几天特意陪他来了趟山东乳山。我们先坐飞机到青岛,然后坐2个小时的小面包车到乳山银滩。这个地方没什么人,据说以前鬼城,看了下附近的房价,大概一平米4000的样子。我们被安排在一个小区的一个二房内,一人一间,食品住宿都安排到位,然后每天上午下午,轮番3/4个人过来给介绍产品,模式。每人只要交49000,现金,没有资金池,一交钱就返6000的运作资金,剩下的被上层的刮分干净,没有沉淀。其实我很明白就是传销,因为这个系统本身并没有产生半毛钱财富,一直给我绕给当地消费增加了多少怎样的,是政府投放在当地的一个种模式,吸引人过来,促进当地经济发展之类。
答:-

2019/01/23 13:39
提 问:欧神总,请问一般办xyk,打电话来审核的这个人是审核员吗?就是最终拍板批不批的人吗?还是在他的后面还有人,他并没有决定权?
答:不是。单独的一个电话回访组。

2019/01/23 13:39
提 问:前几天回老家,我妈说我的远房堂哥摊上个事,大概就是男的背着老婆找了一个小三相好的,(小三也是已婚,但是小三的老公吃喝嫖赌不管这个女的)。他俩相好后约定不影响对方家庭,可是后来男的老婆知道了,让男的和女的断了关系,男的遂断了联系换了手机号,谁知这个小三找上门来了,抱怨男的甩了她,男的躲着不见,可是这个男的家人和老婆打了小三一顿,小三不饶,第二次打着吊瓶又闹到男的家里,男的家人报警,警察教育后又劝回,小三依然不饶在全村贴小广告诉说被男的无情抛弃,后来又在男的家门泼油漆,,,女的一直质问凭什么抛弃她~~男的很无奈摆脱不了,(以上是听我妈说的,这事闹得全村人尽皆知),您有没有主意摆脱这个小三?
答:赔钱

2019/01/23 13:38
提 问:OD,我家宝宝快两岁了,在家里很淘,经常叽叽呱呱的说个不停。但是在外面看都不看其他人,更别说打招呼握手之类的。长期这样下去怕出问题,该怎么引导,有劳我神。
答:多带出门,习惯出门。

2019/01/23 13:37
提 问:欧神对武汉房价怎么看待?如果有看好请问是哪个地段比较好?
答:有机会。但可能是2020年。

2019/01/23 13:37
提 问:欧大大好,魔都有5500万房产资产包,(其中950万房贷,500万抵押贷款,60多万信用贷)负债,4000万净房产,现发生战术困境,储备的350万现金意外损失,另有200也要年底才能赎回,现每月还款接近13万,收入今年不稳定,可能100多万左右,但也要下半年陆续到账。想请教下您看看应对是否合理1 借100多万,清一套1400万剩余贷款,抵押得900万存入银行(这钱是否应该投资没想好)和存入私行谈好同时办一100万额度卡+自己POS可过渡大半年2 借款100万纯过度,等待下半年逐步回,血,不再做抵押操作,也不增加负债了。3 现有算多少负债率 再增加900后呢 算高吗欧大大指教 感谢
答:新手B,老手A负债率不算高,只不过现金管理没做好吧。

2019/01/23 13:36
提 问:欧大中午好,某企业净资产5000万,负债比20% 50% 100%分别算是负债多少。总资产多少? A8.5大体量多军一般负债率控制在多少比较合适 谢谢欧大
答:1250/62505000/10000100%不可能A8.5多军要看你买在哪一年的。一般在1000~2500之间

2019/01/23 13:35
提 问:欧大,不是期限越长的贷款越值钱吗?

水库论坛|欧神文集|欧神小密圈|欧成效|房产投资官网

水库论坛|欧神文集|欧神小密圈|欧成效|房产投资官网
答:对啊

2019/01/23 13:34
提 问:【中信银行】您办LC黑金信用卡,金属材质,每月8次免费东海朗廷健身游泳,无限贵宾厅。更多权益戳cxcc.me/JiXV 申请!退订回T欧大,这个卡年费6800,权益很普通。我资质也够不上黑卡,一张都没有。是不是骗年费的?
答:骗年费的
现在这个社会,学历是必备的敲门砖。就业也好,落户积分也罢,必不可少。提供一个好的学历提升渠道(哪怕你是个中学学历也不怕),门槛低,不占用你工作的时间,详情请扫二维码:
2019/01/23 13:23
提 问:月收入多少才值得去上班?

水库论坛|欧神文集|欧神小密圈|欧成效|房产投资官网

水库论坛|欧神文集|欧神小密圈|欧成效|房产投资官网
答:武汉的话,至少12K吧。

2019/01/23 13:22
提 问:对媳妇怎么也提不起性趣了,是更年期了?还是厌倦了?这个符合您的5年朋友圈要换一圈的理论吗?如何和谐?
答:瘦身塑脂,开朗明亮。

2019/01/23 13:22
提 问:当前的中产阶级资产在多少区间?
答:7.5~8.1

2019/01/23 13:21
提 问:印度尼西亚国家石油公司宣称,将在2019年购买不以美元计价而是以人民币等计价的石油。预计日最高采购量超500万桶,这是一个巨大的数字,超过了中国日进口原油的一半。这则消息意味着石油人民币时代的到来,而石油美元的时代正在快速衰落。请教欧大,石油美元的削弱,对楼市投资有何影响?
答:心理因素更多一点。会有人炒作中国资产。实际影响微乎其微。

2019/01/23 13:21
提 问:欧大,本来有外媒说2019中国会全面放开计划生育,结果最近官方好像绝口不提这一计划,2018全国新生儿才1500万,比2017少了200万,难道官方又改主意了?
答:我感觉是老大腾不出手。

2019/01/23 13:20
提 问:A大,年初这场思想统一会,核心思想是什么呢?具体到房产政策呢?
答:感觉要动员,english.就等TRP收下1T USD了。

2019/01/23 13:20
提 问:OD,求问一下做抵押,我是A找B代持,首付给他让他按揭,按揭后能直接办理抵押吗还是等到增值后才能为抵押?异地办理抵押可以吗?
答:他买房,本身就有贷款。二押的上限,也是70%抵押的前提,必需还清。叠一元抵押证,随时可以。

2019/01/23 13:19
提 问:我的广州户口正在办中,大约要还要一年,我准备拿我妈妈的名义,在广州不限购地区新塘买个二套或四套房投资,可能要全款了,准备持有5年以上,这个投资可以吗?5年后能涨多少?谢谢
答:不灵的。乱买东西浪费钱。

2019/01/23 13:18
提 问:做凤冰的话,五六十平的小户型好还是一百多平的大户型好?小白一般选装修队还是装修公司好?谢谢欧大
答:凤冰追求快速流转。一般50m好。肯定装修队。装修公司又慢又官僚。

2019/01/23 13:17
提 问:欧大,保利观澜这种3米+3米的跃层户型,是好还是不好,请点评下,感觉怪怪的。

水库论坛|欧神文集|欧神小密圈|欧成效|房产投资官网

水库论坛|欧神文集|欧神小密圈|欧成效|房产投资官网
答:除了全北户型,其他没什么不对。楼梯算节制的。总面积太小,小复式住着很难受的。

2019/01/23 13:15
提 问:重庆的棚改算大新闻吗?感觉群里没什么人关注啊。接触水库之后已经把身家都压在重庆了,不知道这次能不能翻身
答:这种事就和放水一样。是一定会发生,而不知道哪天发生的事。所以水库不惊讶。
上海库友福利:
注册公司费用低廉。最大优点:全套代办。你一次也不用出面,就把事儿办成了。详情扫二维码:

2019/01/23 13:14
提 问:自由主义经济造成贫富分化,而贫富分化对社会有害。如何反驳以上观点?和一朋友,马克思主义学者在辩论
答:贫富分化对社会无害。贫富分化对社会有益。

2019/01/23 13:13
提 问:大女儿六七岁 对谈恋爱的故事特别有兴趣 。想问下欧神会不会刻意给自己的女儿挑选故事/电影去引导 会不会想要在潜移默化中影响她的婚恋观?欧神之前说您的父亲让您从小读什么书来着 《 珍妮姑娘》《嘉莉妹妹》,觉得很落伍?最近在陪女儿听这个作者的书 觉得这些书放在现在社会来看 简直超级契合现状,半点不落伍。阳光底下没有新鲜事,过时IP的内核还是很经典。但给小朋友听是不是有点太暗黑了?谢谢

水库论坛|欧神文集|欧神小密圈|欧成效|房产投资官网

水库论坛|欧神文集|欧神小密圈|欧成效|房产投资官网
答:如果你读迪斯尼六公主,女孩子什么都不用做,就会有王子追上门。那孩子才是真的被毁掉了。从小接受残酷点的教育,挺好的。暗黑故事才是真相。

2019/01/23 13:11
提 问:OD,本人新手。借卡时对方大都不停的追问,特别是T..x细节时,这时应该说什么好?
答:信我就别问了。想问就别借了。

2019/01/23 13:10
提 问:欧神,遇到问题,请教您。2018年接触水库,在6月冲动的购买的cq一手盘,外地三无,当时中介说还可以走按揭,开发商给找的渣打银行,渣打真的很渣。一直折磨要各种资料。现在终于说审批通过准备放款。之前开发商让我们首付4成,贷款6成,最后渣打给下了5.5成,开发商让我们补款。我们现在应该怎么操作比较有利?(后来再看水库信息感觉选抽选的很不好)a.拖一下,倔强一下。b.认怂,赶快交上c.退房,损失10w中介费(电商服务费),没退过不知道是否会很麻烦
答:B渣打垃圾中的战斗机,多纠缠无益。

2019/01/23 13:08
提 问:请教欧神,贷款产生hb,还贷款消灭hb,这个说法对吗?不对还贷之后,银行手里现金太多,会尽量把钱再贷出去。因此这是守恒量,无用功。———是不是这么理解,银行一直是满负荷操作。所以个体还贷银行很快又会贷出去?所以放出去的水不会收回来
答:对的。
上海库友,如果需要好的装修队,可以给大家推荐专业,靠谱的装修师傅团队。微信:shuidi021

2019/01/23 13:07
提 问:od,自从入圈之后,cq已入了几套了,还可以继续打,刚看到棚改政策,这个时间段投资入还可以入么?纯投资,想要两年到三年抛掉,可以选择照母山跌了百分之30的精装套三么?还是依旧两江四岸?
答:可以的照母山兴趣不大,本身跌30%就有水份。

2019/01/23 13:03
提 问:欧神好!这么些ZD,到CQ搞不是要累死人么?SZ玩两炮大的然后ZD打CQ不是可以更大化么?求思路谢谢

水库论坛|欧神文集|欧神小密圈|欧成效|房产投资官网

水库论坛|欧神文集|欧神小密圈|欧成效|房产投资官网
答:明年的钱,你还没有拿到。目前手里就只是300w现金,而且没说深圳房票。如果300+房票资源,可以先买一套深圳。房票资源微信shuidi021。
                          
水库论坛|欧神小密圈,2019年01月23日)


水库论坛微信群Shuidi021, 备注“水库论坛
本站网址:www.oushenwenji.net

回复

使用道具 举报

微信扫一扫,水库论坛微信群等着你,备注“水库论坛”。

手机版|Archiver|水库论坛欧神文集官网 ( 沪ICP备18000679号-1 )

GMT+8, 2025-10-14 13:40 , Processed in 0.129444 second(s), 6 queries , File On.

Powered by Discuz! X3.4 Licensed

Copyright © 2001-2020, Tencent Cloud.

快速回复 返回顶部 返回列表